Villa of the highest standards right in front of the beach

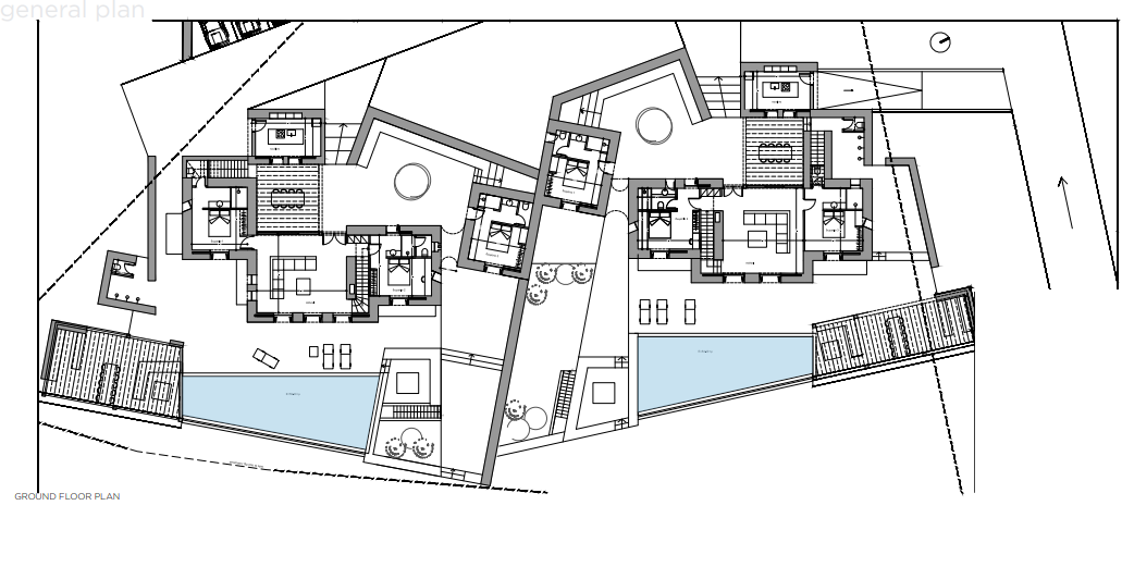
Designed by a renowned arhcitect, the two villa complex offers a stylish, minimalist Cycladic character with a combination of stone and whitewashed walls, blending with the island’s landscape. Located right in front of Filizi beach, the villa has unobsructed views of the sea and the island of Naxos. 

The villa is built in three levels, while it has a spacious outdoor space with 3 parking lots, a swimming pool (54sq.m.) and a pergola (41sq.m.) which connects with the ground floor. On this level, it is located the living room (48sq.m.), the kitchen with an open-end pergola (35sq.m.) and two master bedrooms with private bathrooms (26 & 20 sq.m. each). 

On the underground level, there will be two bedrooms with showers (17 & 24 sq.m.), a storage space (34sq.m.) and another space that can be converted to a gym (47sq.m.).  

On the top floor there is only a master suite with its private balcony and endless view. 

The villa is at an early age of construction being sold at 1,500,000€ and it requires 1,000,000€ more to finalize.

 

Features

290

Square Meters

1

Infinity Pool

6

Bed
Rooms

6

Bath
Rooms

About The Villa

Wow factor: sensuous, curving terraces and pool side island living you’ll never forget

Gallery

Contact us

Leave us a note and we will get back to you for a free consultation

Search

April 2026

  • M
  • T
  • W
  • T
  • F
  • S
  • S
  • 1
  • 2
  • 3
  • 4
  • 5
  • 6
  • 7
  • 8
  • 9
  • 10
  • 11
  • 12
  • 13
  • 14
  • 15
  • 16
  • 17
  • 18
  • 19
  • 20
  • 21
  • 22
  • 23
  • 24
  • 25
  • 26
  • 27
  • 28
  • 29
  • 30

May 2026

  • M
  • T
  • W
  • T
  • F
  • S
  • S
  • 1
  • 2
  • 3
  • 4
  • 5
  • 6
  • 7
  • 8
  • 9
  • 10
  • 11
  • 12
  • 13
  • 14
  • 15
  • 16
  • 17
  • 18
  • 19
  • 20
  • 21
  • 22
  • 23
  • 24
  • 25
  • 26
  • 27
  • 28
  • 29
  • 30
  • 31
0 Adults
Size
Price
Amenities
Facilities

Compare listings

Compare

Compare experiences

Compare