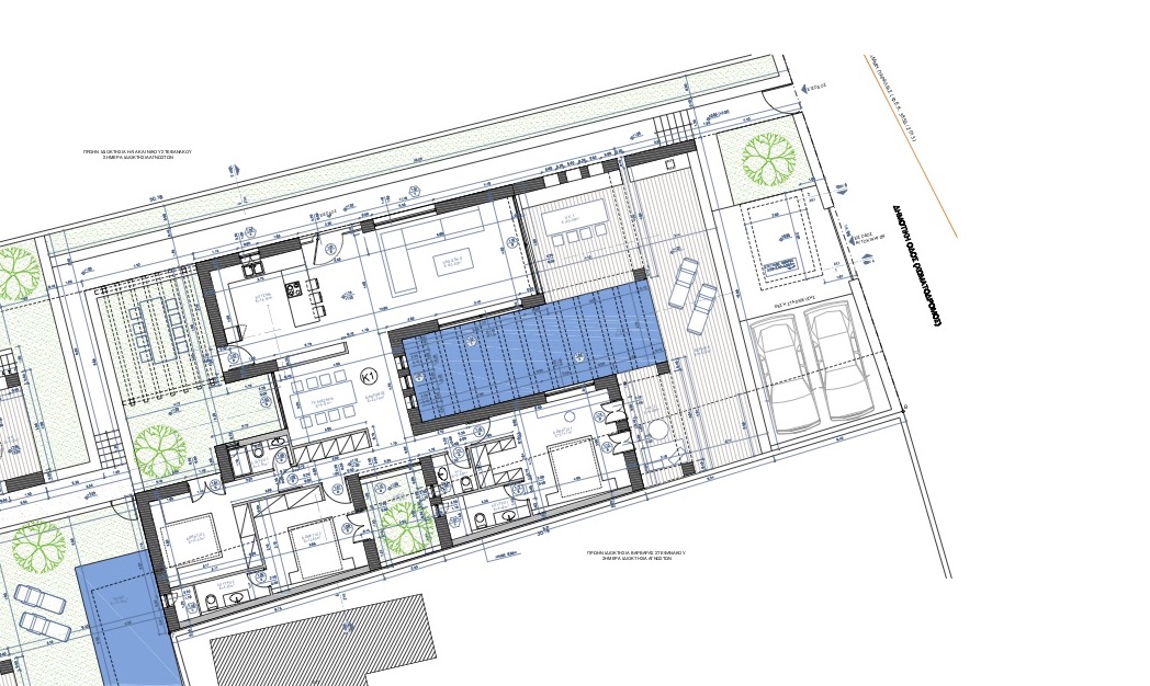
The villa is part of the ongoing Project Molos III complex, located in front of the sandy paradise of Molos beach at the eastern part of the island. In the ground floor of the house there is the kitchen, the living room and the dining area, as well as, a king size bedroom with a separate bathroom. On the first floor there is the master bedroom with its private bathroom. The particular villa of this project has a garden with an Old Cedar unique tree and a private pool 6×3. The project will be ready before the summer of 2021.
Square Meters
Private Pool
Bed Rooms
Bath Rooms
Wow factor: sensuous, curving terraces and pool side island living you’ll never forget
Leave us a note and we will get back to you for a free consultation
Log in
Don't have an account? Register
Register with your email
Do you already have an account? Log In
Please enter your username or email address. You will receive a link to create a new password via email.
Feel as your home